RELEVANT DESIGN THOUGHTFULLY CRAFTED

SINCE 2002

SINGLE FAMILY CURRENT MULTIFAMILY PLANNING SKETCHES ABOUT CONTACT
vail, architect, architecture, beaver creek, minturn, vail architect, breckenridge, washington dc, maryland, virginia, washington, seattle

DEVELOPER FEASIBILITY . SITE PLANNING . RESIDENTIAL AND COMMERCIAL DESIGN . CLIENT REPRESENTATION

SINGLE FAMILY HOMES - links to additional photos to follow shortly

Retreat

Beach Living

Great American Living Award, Best Custom Home

Idyllic

shingle style home

Custom Infill Home of the Year

New Castle

coastal cottage

Best Custom Home on lots under 5,000sf

Overall Custom Home of the Year

Palisades

vertical living

Great American Living Award, Detached Home

Washington D.C. Home of the Year

waterfront estate

Seaside

transitioning  borders

Elements

OPaL

art focussed home

Award of Merit for Architecture

Great American Living Award, Outstanding Living Space

 

Tapawingo

modern farmhouse

traditional forms

Cabin John

Best American Living Award

GALA Home of the Year

MULTIFAMILY HOMES - links to additional photos to follow shortly

rowhome  living

Lombard Court

Alley Stables

naylor court revival

6 National Awards for Architecture

7 Regional Awards for Architecture

urban renewal

Pitmans's Chapel

National Award of Merit, Best Boutique Project

Best Design Architecture, Attached Housing

3 Regional Awards for Architecture

New Union

repurposed garage

PCB National

Best Multi-Family Project

Market Square

northwest deco apartments

Aventine

urban growth

CURRENT WORK

re-purposing of dilapidated ice

storage barn in historic DC alley

Cluss Alley

Lake View

naylor court revival

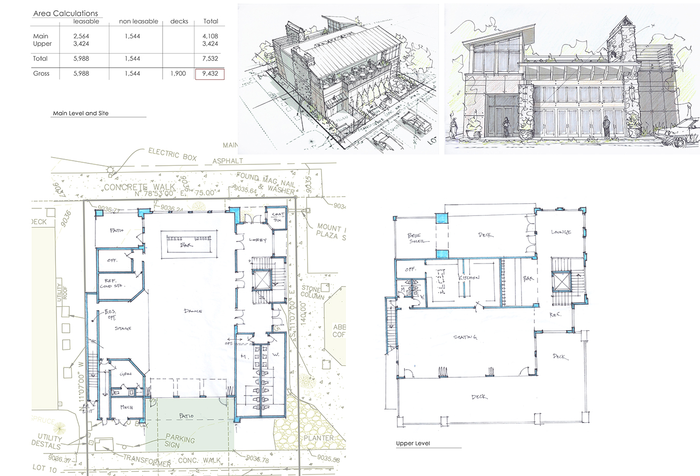
Barclay Ballroom

new concert venue in Frisco, Colorado

Modern Farmhouse

additive farmhouse composition for tailored to contemporary mountain home design in Colorado

Par 5

waterfront home on golf course on Maryland's eastern shore

Modest Mountain

modest home with a conservative facade, but with a deep connection to the outdoors in the back

Kensington

clean and simple designs for

small homes outside of D.C.

The Turn affordable housing in resort town

Northwest Mod

renovation of a split level

suburban home

PLANNING & FEASIBILTY

Spring District

visioning for a mixed-use project in

Bellevue, Washington

Spring District

site feasibility for financial analysis and entitlements review

Carter Farm  housing concepts for TND in Maryland

Naylor

sketches to help developer visualize potential densities

Chapel Lofts

renovation of existing chapel to accommodate new, open lofts

Barclay Ballroom

early plan and design studies

for restaurant and bar concert

venue in Frisco, Colorado

Carter Farm   150 Unit Traditional Neighborhood Design

Mixed Use

site feasibility and visioning for a development site outside of Washington D.C.

Carter Farm

bird's eye view to provide better understanding of new TND community

SKETCHES

Estate Homes

Coastal Designs

Mountain Homes

East Coast meets West

Charming Smaller Homes

STUDIO

RELEVANT DESIGN THOUGHTFULLY CREATED

We design buildings that belong.  Our clients find themselves in a home that is fully inspired by their ideas and dreams.  Developers we work with sell homes quickly because their 'product' is more thoughtful and creative than the competition.  Builders we work with are listened to and appreciate our 'team' approach.

 

We consider ourselves lucky to have developed relationships with all of these people and are proud of our awards, and also our ability to maintain repeat clientele.

You can expect us to listen to you and to provide you with ideas for consideration.  It is from these ideas that we work together to create a final design that is not only attractive, but also efficient and thoroughly developed.

We understand that this is one of the largest investments that most people will make in their lives and that we are designing for our clients, not for us.

 

Please reach out to us, we'd love to chat about your project and possibly begin to build a relationship to make this process successful for you.

 

CONTACT

970 . 470 .  4945

 

general@gpsdesigns.com